
Infraštruktúra
Podjazd, Donkerbroek - Oosterwolde
Projektovanie
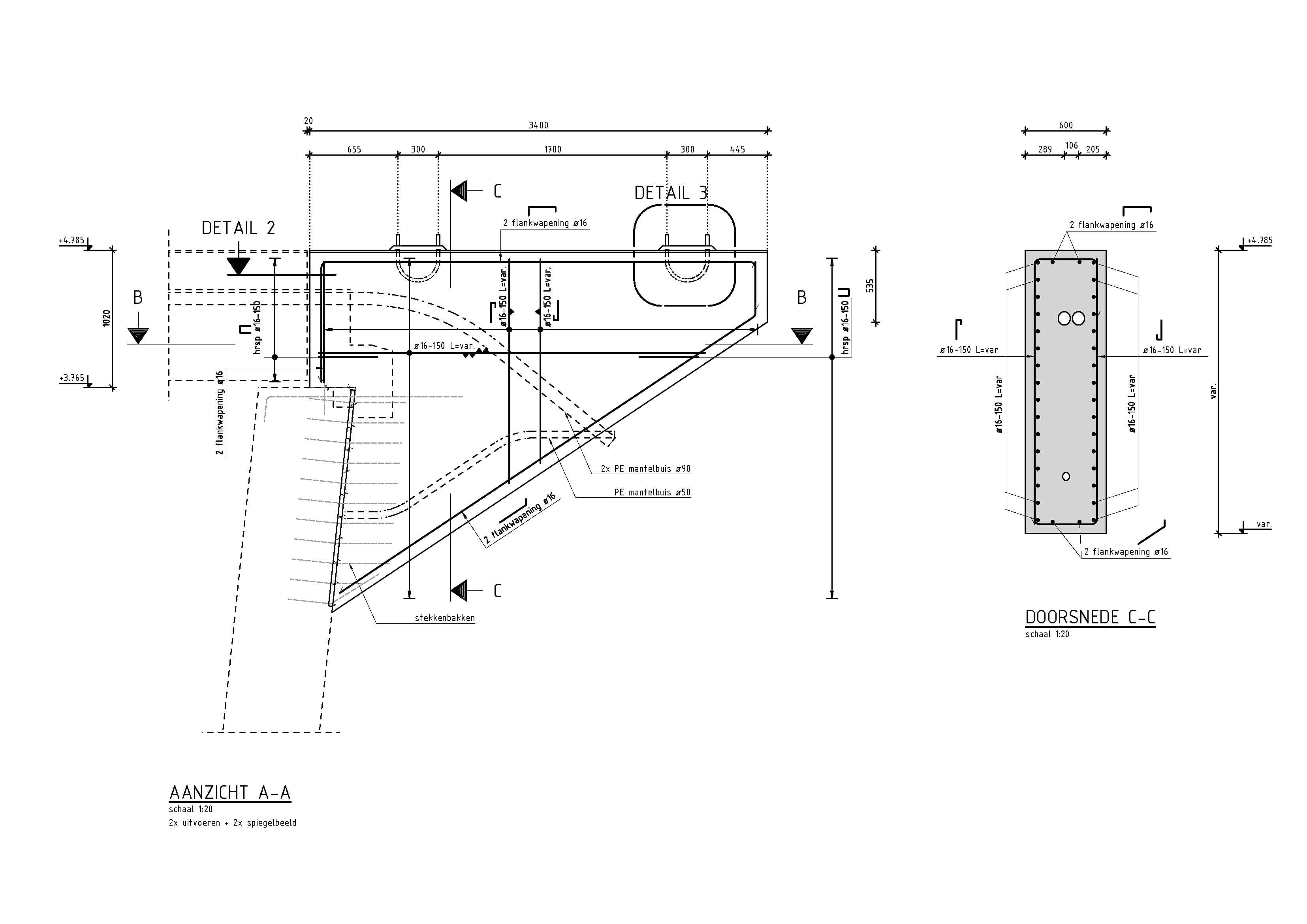
Výkresy tvarov a výstuže mosta, dosiek, stien, prechodových platní, podperných konštrukcií, podperných stien
Krajina
Holandsko
Mesto
Donkerbroek - Oosterwolde
Rok
2019
O projekte
Objekt rieši mimoúrovňové križovanie ciest a skladá sa z mostu a podjazdu.
Názov stavby
Kunstwerk KW0900 – Onderdoorgang't West
Detaily projektu
Rok
2018-2019
Galéria
Máte záujem o podobný projekt?
Kontaktujte nás
Ing. Ján Slivka
vedúci pobočky Žilina
